SANTA ENGRACIA
MÁXIMO CONFORT Y COMODIDAD EN EL BARRIO MÁS TRENDY DE MADRID.
Ubicado en la zona más trendy de Madrid, te ofrece viviendas modernas con acabados de lujo y espacios diseñados para brindar confort y bienestar a sus residentes. Un conjunto residencial pensado y diseñado para ofrecerte el mejor entorno donde disfrutar de un ambiente relajante y tranquilo.
DESCARGAR BROCHUREAMENIDADES
Disfruta grandes momentos en nuestras exclusivas amenidades:
CONOCE NUESTROS DEPARTAMENTOS
Viviendas de 1 a 4 dormitorios, desde 67 m² hasta 300 m². Descarga el brochure y conoce más sobre Be Grand® Santa Engracia.

CONOCE NUESTROS DEPARTAMETOS
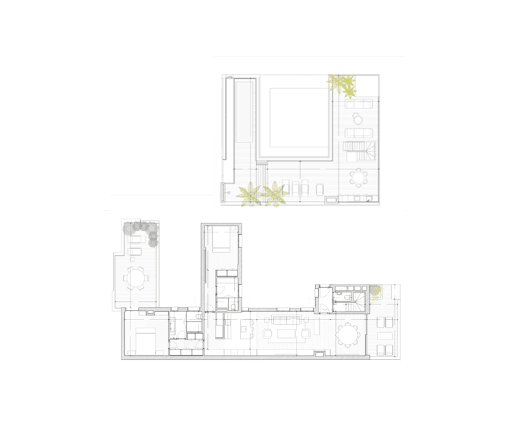
TIPO ÁTICO
Superficie
Total: 298.00 m²
Interior: 149.00 m²
Distribución
Recámaras: 2
Baños: 2.5
Estac.: 2
Haz clic para revelar el mapa interactivo
AGENDA TU CITA
Déjanos tus datos y uno de nuestros asesores se comunicará contigo para brindarte más información y agendar tu cita.


