OLAVIDE
IRRADIA VIDA Y AUTENTICIDAD
Ubicado en la prestigiosa Calle Juan de Austria, en el corazón de Madrid, nuestro edificio de viviendas ofrece una combinación perfecta de comodidad y accesibilidad. Esta zona destaca por su cercanía a importantes puntos de interés, como parques, centros culturales y una amplia variedad de servicios.
DESCARGAR BROCHUREAMENIDADES
Disfruta grandes momentos en nuestras exclusivas amenidades:
CONOCE NUESTROS DEPARTAMENTOS
Viviendas de 3 dormitorios de hasta 102,84 m².

CONOCE NUESTROS DEPARTAMETOS
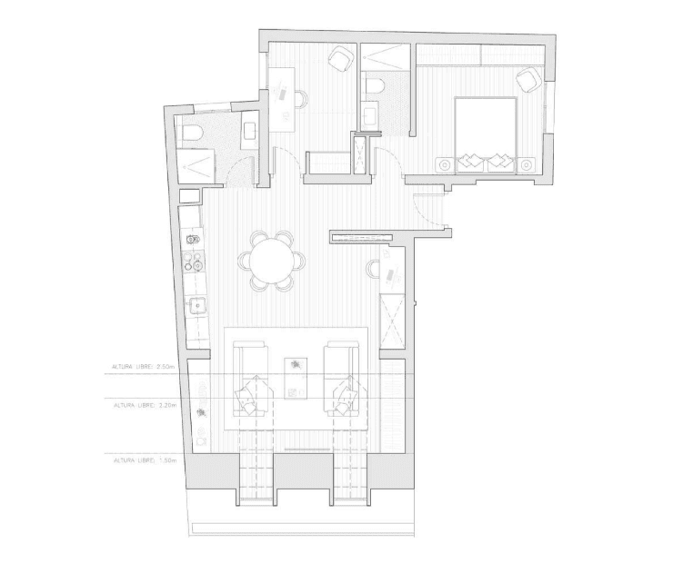
VIVIENDA 101
Total: 103.00 m²
Interior: 74.00 m²
Recámaras: 2
Baños: 2

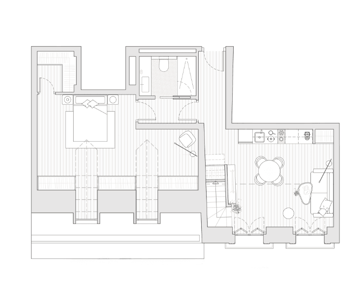
CONOCE NUESTROS DEPARTAMETOS
VIVIENDA 304
Total: 96.00 m²
Interior: 67.00 m²
Recámaras: 2
Baños: 2

CONOCE NUESTROS DEPARTAMETOS
ÁTICO 1
Total: 125.00 m²
Interior: 91.00 m²
Recámaras: 2
Baños: 2

CONOCE NUESTROS DEPARTAMETOS
ÁTICO 2
Total: 135.00 m²
Interior: 75.00 m²
Recámaras: 1
Baños: 1

CONOCE NUESTROS DEPARTAMETOS
ÁTICO 4
Total: 112.38 m²
Interior: 80.67 m²
Recámaras: 2
Baños: 2
AGENDA TU CITA
Déjanos tus datos y uno de nuestros asesores se comunicará contigo para brindarte más información y agendar tu cita.


