DISTRITO SALAMANCA
EXPERIMENTA UN GRAN ESTILO DE VIDA
Be Grand® Distrito Salamanca es un conjunto residencial diseñado para disfrutar del lujo, el bienestar y la serenidad. Ubicado en un edificio de los años 30 que conserva sus fachadas clásicas, de gran valor y belleza arquitectónica, ha sido reformado para ofrecerte viviendas de obra nueva con piscina y exclusivas zonas comunes de lujo.
DESCARGAR BROCHUREAMENIDADES
Disfruta grandes momentos en nuestras exclusivas amenidades:
CONOCE NUESTROS DEPARTAMENTOS
Viviendas de 1 a 4 dormitorios, desde 60 m² hasta 280 m². Descarga el brochure y conoce más sobre Be Grand® Distrito Salamanca.

CONOCE NUESTROS DEPARTAMETOS
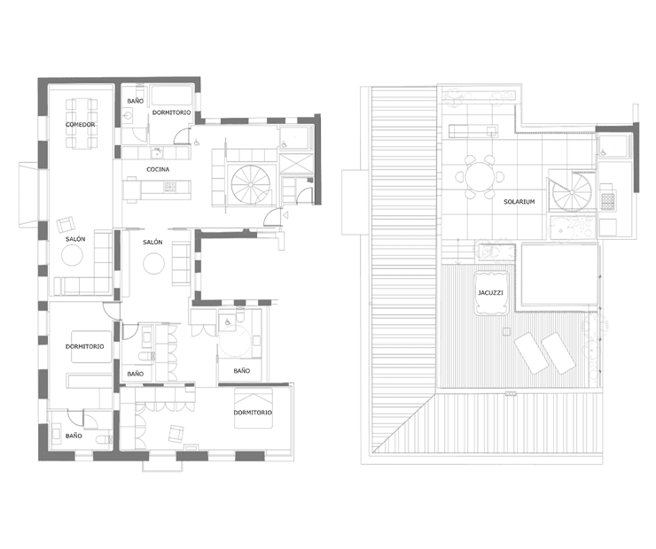
ÁTICO 5A
Superficie
Total: 289.51 m²
Interior: 196.46 m²
Distribución
Recámaras: 3
Baños: 4
Estac.: 2
Haz clic para revelar el mapa interactivo
AGENDA TU CITA
Déjanos tus datos y uno de nuestros asesores se comunicará contigo para brindarte más información y agendar tu cita.




